- センチュリー21 拓建
- 新築一戸建てをエリアから探す
- 富津市
- 下飯野
- 富津市下飯野新築住宅・1号棟






ご成約にて豪華プレゼント♪
人気の平屋建♪
耐震 制震の安心住宅です♪
駐車スペース2台♪
人気の平屋建♪
耐震 制震の安心住宅です♪
駐車スペース2台♪
すべての画像
外観 外観パースです♪がっちりした骨組みで安心!保険により万が一の瑕疵(欠陥)補償費用を10年サポート♪
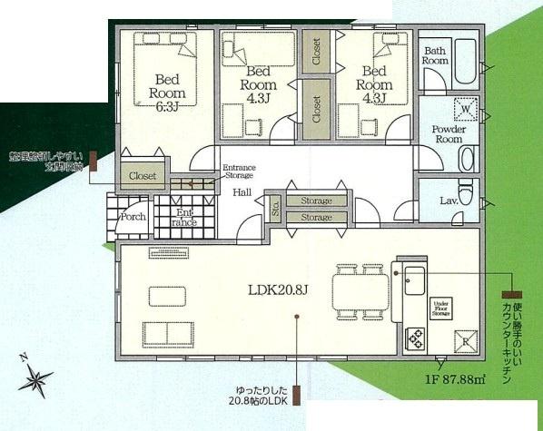
間取り 暖かく・明るい陽ざしが差込む、開放感のあるリビングで家族団らんステキな時間を♪ 図面と現況が異なる場合は現況優先とさせていただきます。
その他現地 2026年2月10日撮影♪基礎工事着工いたしました♪
キッチン 施工例 調理がはかどるシステムキッチン♪収納豊富で、シンクも作業スペースも広いのでスムーズに料理ができますね。3口コンロ、グリル付です♪
バス 施工例【親子でゆったり癒やしの時】足を伸ばしてリラックスできる1坪タイプ。浴室乾燥機付きで、雨の日や花粉の季節の洗濯も安心です。一日の疲れをリセットし、お子様との会話も弾む、清潔感あふれるバスルーム。
洗面台・洗面所 施工例 毎日使うものだから清潔な空間を保ちたい水回り。洗面にはそんな願いを解消させてくれる収納アイデアが満載です。鏡の裏側にはキャビネットが現れ小物から背の高い物まで収納できます♪
トイレ 施工例 トイレを癒しの空間と考える人は少なくありません。だからこそ、寛げる場所であってほしいと思っている人も多いでしょう。機能面でも癒しや寛ぎの空間に相応しいトイレとなっています。
その他現地 2026年2月10日撮影♪基礎工事着工いたしました♪
物件詳細情報
物件No.30000748487
| 所在地 | 千葉県富津市下飯野1237-12 | ||
|---|---|---|---|
| 交通 | 内房線「青堀」駅徒歩16分 内房線「君津」駅徒歩49分 内房線「大貫」駅徒歩98分 |
||
| 間取 | 3LDK | ||
| 土地面積 | 241.13m² 実測 | ||
| 建物面積 | 87.88m² 実測 | ||
| 構造・規模 | 木造 1階建て | 築年・入居 | 2026年4月 |
| 建物現況 | 建築中 | 建築確認番号 | 第25UDI1W建11716号 |
| 駐車スペース | 2台 | 引渡時期 | 期日指定有(2026年4月下旬) |
| 国土法届出 | 不要 | 地目 | 宅地 |
| 用途地域 | 第一種中高層住居専用地域 | 建ぺい率 | 60% |
| 容積率 | 200% | 都市計画 | 市街化区域 |
| 権利種類 | 所有権 | 接道 | 北側6M公道に接道 |
| 小学校区 | 青堀小学校(908m) | 中学校区 | 富津中学校(595m) |
| 取引態様 | 媒介 | ||
| 設備 | 個別LPG 個別プロパン 公営水道 個別浄化槽 浄化槽 設計住宅性能評価有 建設住宅性能評価書有(新築時) 建築確認完了検査済証有 緑豊かな住宅地 閑静な住宅地 都市近郊 市街地が近い 前道6m以上 外壁サイディング 部屋向き 南向き 採光面 2面採光 日当り良好 通風良好 LDK広さ 20帖以上 上水道 公営 汚水 個別浄化槽 ガス 個別プロパン フローリング 全居室フローリング 複層ガラス 駐車可能台数 2台可 24時間換気システム 全居室収納 収納スペース クローゼット シューズインクローゼット 床下収納 システムキッチン カウンターキッチン ガスコンロ コンロ口数 三口 浄水器 独立洗面台 シャンプードレッサー バス広さ 1坪以上 オートバス 追い焚き シャワー 浴室に窓 浴室暖房 浴室乾燥機 温水洗浄便座 節水型トイレ 専用庭 フラット35・S適合証明書有 全居室複層ガラス TVインターホン ディンプルキー ダブルロックドア 火災警報器(報知機) |
||
| 備考・制限等 | 接道状況:一方 地勢:平坦 駐車場タイプ:カースペース ◆住宅ローンに強い!無料相談会開催中♪ ■頭金・諸費用がない方 ■オートローンや他に借入がある方 ◆諸費用から家具家電費用・オプション費用等住宅ローンでお任せ下さい!! ◆ご家族みんながゆったりくつろげる広々リビング♪ ◆たっぷりの陽光に包まれる明るい住まい♪ ◆便利なカースペース2台♪ ◆ご見学希望のお客様!当日ご見学可能です。ご自宅まで送迎、現地待ち合わせも可能です。 [お支払いシュミレーション] 今のお家賃と比較して下さい♪ ※月々63,723円~ ※借入額2580万円 金利0.875% (市中銀行変動金利 1.9%優遇 保証料前払いの場合) お借入年数40年 頭金別0円 諸費用 |
||
こだわり項目
緑豊かな住宅地閑静な住宅地平坦地南向き床下収納全居室収納設計住宅性能評価付建設住宅性能評価付(新築時)複層ガラス浴室乾燥機浴室に窓全居室フローリングTVモニタ付インターホン温水洗浄便座システムキッチンカウンターキッチン浄水器3口以上コンロ追焚機能浴室暖房オートバスシューズインクローゼット陽当り良好通風良好フラット35・S適合証明書
- ※価格は物件の代金総額を表示しており、消費税が課税される場合は税込み価格です。(1,000円未満は切り上げ。)
税率は引き渡し時期により異なりますので、各物件の詳細につきましてはお問い合わせください。 - ※敷地権利が借地権のものは価格に権利金を含みます。
- ※制作中に内容が変更される場合もありますので、あらかじめご了承ください。
- ※購入の前には物件内容や契約条件についてご自身で十分な確認をしていただくようにお願いいたします。
- ※完成予想図はいずれも外構、植栽、外観等実際のものとは多少異なることがあります。
- ※CG合成の画像の場合、実際とは多少異なる場合があります。
周辺地図
- 現地販売会
- 2026年3月5日(木)〜6月3日(水) 10:00〜16:00事前に必ず予約してください 毎週土日祝 千葉県富津市下飯野1237-12
周辺施設一覧
- ショッピングセンター
- スーパー
- コンビニ
- ドラッグストア
- ホームセンター
- 飲食店
- その他店舗
- 商店街
- 大学
- 専門学校
- 高校・高専
- 中学校
- 小学校
- 保育園
- 幼稚園
- 公民館・児童館
- 病院
- 郵便局
- 役所
- 図書館
- 金融機関
- 警察・消防
- 趣味・娯楽施設
- 公園・運動施設
- 周辺の街並み
- 駅
- その他
- センチュリー21 拓建
- 新築一戸建てをエリアから探す
- 富津市
- 下飯野
- 富津市下飯野新築住宅・1号棟

















