- センチュリー21 拓建
- 中古住宅をエリアから探す
- 袖ケ浦市
- 袖ケ浦駅前
- 袖ケ浦市袖ケ浦駅前戸建住宅
袖ケ浦市袖ケ浦駅前戸建住宅
情報更新日:2026/04/18 次回更新予定日:2026/05/03
所在地千葉県袖ケ浦市袖ケ浦駅前1丁目27-11[周辺地図]
交 通内房線「袖ケ浦」駅徒歩5分






袖ケ浦駅徒歩5分♪
カースペース3台可♪
ぜひ、御内見下さい♪
すべての画像
外観 暖かく・明るい陽ざしが差込むお家で家族団らんステキな時間を♪
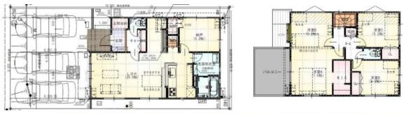
間取り 暖かく・明るい陽ざしが差込む、開放感のあるリビングで家族団らんステキな時間を♪ 図面と現況が異なる場合は現況優先とさせていただきます。
リビング 4月17日撮影♪朝は爽やかな日差しを浴びながら、家族みんなでおいしい朝食。昼下がりには読書やお昼寝でもしながらのんびりと過ごすひと時…。家族が集まる空間を、一番明るい空間に♪
キッチン 2026年4月17日撮影♪調理がはかどるシステムキッチン♪収納豊富で、シンクも作業スペースも広いのでスムーズに料理ができますね。3口コンロ、グリル付です♪
リビング 2026年4月17日撮影♪大きな窓のあるリビングは、陽光あふれる明るい空間です。居心地良く、ご家族皆がゆったり寛げる憩いの空間となりそうです♪
キッチン 2026年4月17日撮影♪調理がはかどるシステムキッチン♪収納豊富で、シンクも作業スペースも広いのでスムーズに料理ができますね。3口コンロ、グリル付です♪
キッチン 2026年4月17日撮影♪パントリーは災害時の備蓄スペースとしても非常に活躍します♪
キッチン 2026年4月17日撮影♪家計にもやさしい食器洗乾燥機付です♪
バス 2026年4月17日撮影♪【親子でゆったり癒やしの時】足を伸ばしてリラックスできる1坪タイプ。浴室乾燥機付きで、雨の日や花粉の季節の洗濯も安心です。お子様との会話も弾む、清潔感あふれるバスルーム。
洗面台・洗面所 2026年4月17日撮影♪毎日使うものだから清潔な空間を保ちたい水回り。洗面にはそんな願いを解消させてくれる収納アイデアが満載です。三面鏡の裏側にはキャビネットが現れ小物から背の高い物まで収納できます
洗面台・洗面所 2026年4月17日撮影♪毎日使うものだから清潔な空間を保ちたい水回り。洗面にはそんな願いを解消させてくれる収納アイデアが満載です。
トイレ 2026年4月17日撮影♪トイレを癒しの空間と考える人は少なくありません。だからこそ、寛げる場所であってほしいと思っている人も多いでしょう。機能面でも癒しや寛ぎの空間に相応しいトイレとなっています。
洋室 2026年4月17日撮影♪シンプルですっきりとした室内は飽きのこない居心地の良い雰囲気。自分好みの空間を創り上げてください♪
収納 2026年4月17日撮影♪広々WIC付です奥行きのある収納は季節物の収納に大活躍間違いなしです♪
収納 2026年4月17日撮影♪便利なクローゼット付きで収納豊富。大切なお洋服も沢山保管できます♪
玄関 2026年4月17日撮影♪玄関には大容量のシューズボックスがございます。ご家族皆様の靴がキレイに収まり、玄関周りは常にスッキリ♪
物件詳細情報
物件No.30000751216
| 所在地 | 千葉県袖ケ浦市袖ケ浦駅前1丁目27-11 | ||
|---|---|---|---|
| 交通 | 内房線「袖ケ浦」駅徒歩5分 | ||
| 間取 | 4SLDK | ||
| 土地面積 | 136.29m² 公簿 | ||
| 建物面積 | 111.58m² | ||
| 構造・規模 | 木造 2階建て | 築年月 | 2022年10月築 |
| 国土法届出 | 不要 | 地目 | 宅地 |
| 用途地域 | 第二種住居地域 | 建ぺい率 | 60% |
| 容積率 | 200% | 都市計画 | 市街化区域 |
| 駐車スペース | 3台 | 現況 | 空家 |
| 引渡時期 | 相談 | 権利種類 | 所有権 |
| 接道 | 南西側6M公道に接道 | 小学校区 | 奈良輪小学校(1409m) |
| 中学校区 | 昭和中学校(2112m) | 取引態様 | 一般 |
| 設備 | 本下水 都市ガス 公営水道 公共下水 公共下水 平坦地 区画整理地内 整形地 緑豊かな住宅地 閑静な住宅地 都市近郊 市街地が近い 前道6m以上 駅まで平坦 階建 2階建 日当り良好 通風良好 LDK広さ 20帖以上 上水道 公営 汚水 下水道 ガス 都市ガス フローリング 全居室フローリング 複層ガラス 駐車可能台数 3台以上可 全居室収納 収納スペース 納戸 クローゼット ウォークインクローゼット シューズボックス シューズインクローゼット システムキッチン ガスコンロ コンロ口数 三口 パントリー 独立洗面台 シャンプードレッサー バス広さ 1坪以上 オートバス 追い焚き 浴室に窓 トイレ2ヶ所 節水型トイレ バルコニー バルコニー有 TVインターホン ディンプルキー ダブルロックドア |
||
| 備考・制限等 | 接道状況:一方 駐車場タイプ:カースペース ◆住宅ローンに強い!無料相談会開催中♪ ■頭金・諸費用がない方 ■オートローンや他に借入がある方 ◆諸費用から家具家電費用・オプション費用等住宅ローンでお任せ下さい! ◆ご家族みんながゆったりくつろげる広々リビング♪ ◆たっぷりの陽光に包まれる明るい住まい♪ ◆便利なカースペース3台可(車種による)♪ ◆ご見学希望のお客様!当日ご見学可能です。ご自宅まで送迎、現地待ち合わせも可能です。 [お支払いシュミレーション] 今のお家賃と比較して下さい♪ ※月々103,735円~ ※借入額4280万円 金利0.875% (市中銀行変動金利 1.9%優遇 保証料前払いの場合) お借入年数40年 頭金0円 諸費用別 |
||
こだわり項目
- ※価格は物件の代金総額を表示しており、消費税が課税される場合は税込み価格です。(1,000円未満は切り上げ。)
税率は引き渡し時期により異なりますので、各物件の詳細につきましてはお問い合わせください。 - ※敷地権利が借地権のものは価格に権利金を含みます。
- ※制作中に内容が変更される場合もありますので、あらかじめご了承ください。
- ※購入の前には物件内容や契約条件についてご自身で十分な確認をしていただくようにお願いいたします。
- ※完成予想図はいずれも外構、植栽、外観等実際のものとは多少異なることがあります。
- ※CG合成の画像の場合、実際とは多少異なる場合があります。
周辺地図
周辺施設一覧
- ショッピングセンター
- スーパー
- コンビニ
- ドラッグストア
- ホームセンター
- 飲食店
- その他店舗
- 商店街
- 大学
- 専門学校
- 高校・高専
- 中学校
- 小学校
- 保育園
- 幼稚園
- 公民館・児童館
- 病院
- 郵便局
- 役所
- 図書館
- 金融機関
- 警察・消防
- 趣味・娯楽施設
- 公園・運動施設
- 周辺の街並み
- 駅
- その他
- センチュリー21 拓建
- 中古住宅をエリアから探す
- 袖ケ浦市
- 袖ケ浦駅前
- 袖ケ浦市袖ケ浦駅前戸建住宅















